Stadtwohnungen in Bestlage in Aschaffenburg, Röderweg
Wir konzipieren am Röderweg ein Stadthaus in klassischer Eleganz und mit wertvollen Ausstattungselementen. Zeitlose Wohnkultur, repräsentativ und erhaben für den eigenen Wohngenuss – in bester Lage eben.
Aschaffenburg ist der bayerische Ausläufer der Metropolregion Rhein-Main, wirtschaftlich und kulturell ein Oberzentrum für die nahe Umgebung zwischen Spessart und dem südlicheren Churfranken, am Wasserlauf des Mains zwischen Würzburg und Frankfurt eingebunden.
Unsere Wohnanlage befindet sich im beliebten Wohnquartier „Bessenbacher Weg“ der Ost-Stadt, erhaben über den nachbarlichen Dächern mit Blick auf die St. Pius Kirche und grünem Wohnumfeld.
Die Lage verfügt fussläufig über alle Annehmlichkeiten des täglichen Bedarfs und ist mit dem städtischen ÖPNV direkt ab der Haustüre oder dem Fahrrad an alle „Hotspots“ der Stadt Aschaffenburg angegliedert.
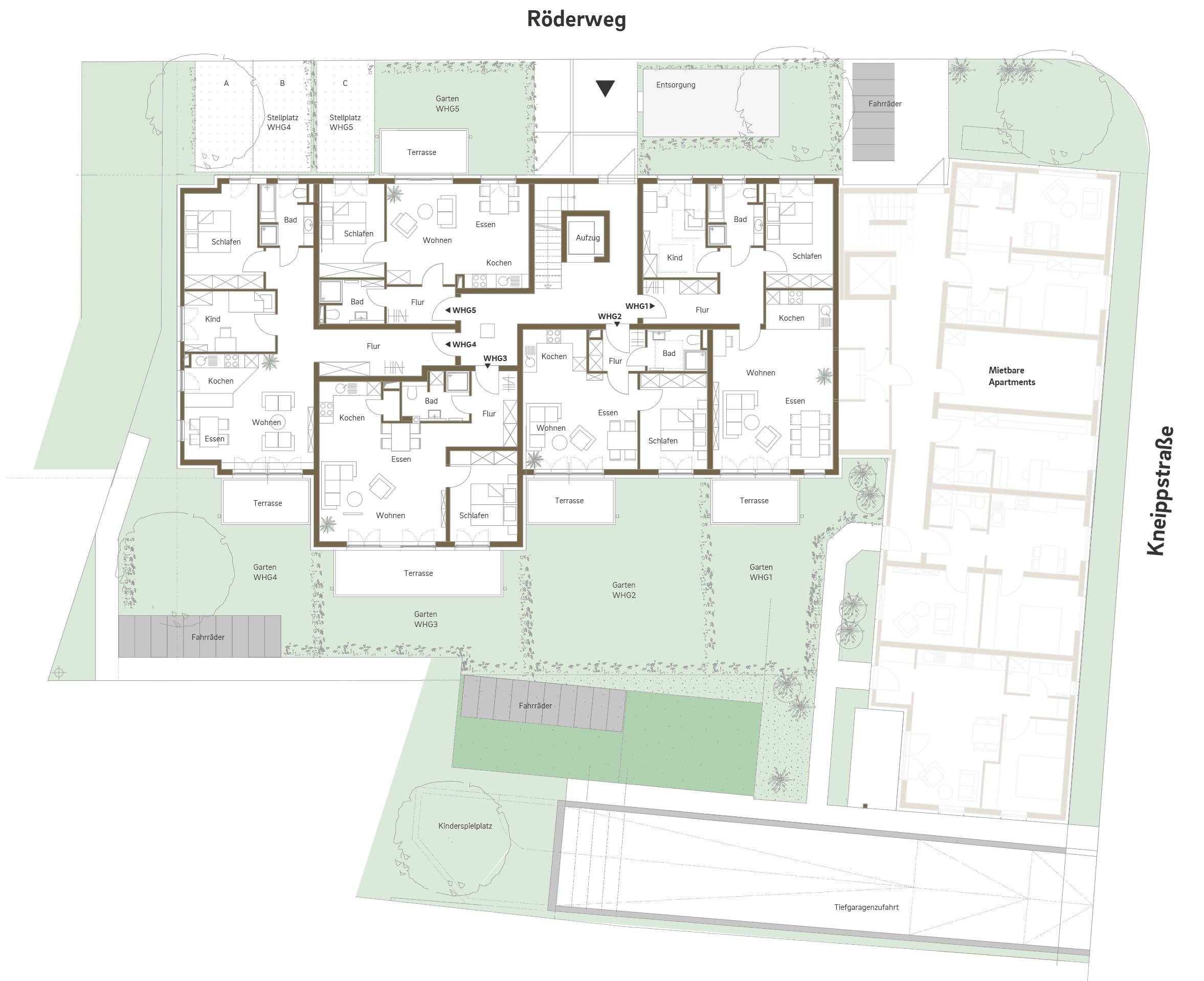
Flexible Grundrissgestaltung, wertvolle Außenanlage
Mit uns gestalten Sie individuelle Wohnträume, die stets getragen sind von leistungsstarken, regionalen Baupartnern und wertigen Markenprodukten.
Besondere Merkmale und optionale Ausstattungsvarianten unseres Objektes sind:
- Erdgeschosswohungen mit Privatgärten
- Variable Raumaufteilung
- Lichtdurchfluteteter Wohn- und Essbereich mit bodentiefen Fenstern
- Offene Wohn-Küchen
- Tageslichtbäder
- Sicherheitspaket mit Gegensprechanlage, abschliessbaren Fenstergriffen und einbruchhemmenden Wohnungseingangstüren
- Sonnenbalkone und Terrassen in reiner Süd-West-Lage
- Durchgehende Aufzugsanlagen durch alle Etagen
- Barrierefreie Erschließung zu den Wohnungen
Haben Sie Interesse an unseren Wohnungen im Röderweg in Aschaffenburg?
Gerne senden wir Ihnen unser Exposé zu. Schreiben Sie uns gerne eine E-Mail an mainland@elsesser-pbv.de


